Dreievinduer
Dreievinduer
Bruksområde:
Dreievinduer er et interessant alternativ til klassiske vinduer.
De brukes i boligbygging, spesielt på skandinaviske markeder.
De er en interessant løsning, spesielt der innvendig plass er begrenset.
Egenskaper:
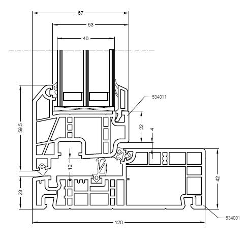
Form: rektangulær
Innbyggingsdybde på karm: 120 mm
Åpningsmåte: rammen roterer 180 grader (horisontal dreieakse)
Mulighet for bruk av glass med tykkelse på 24 eller 36 mm i to- eller trelags utførelse.
Utstyr:
– Vinduet åpnes med et (bøyd) håndtak montert nederst på rammen.
– Beslag fra IPA
– sikkerhetssperre som hindrer uønsket åpning av barn (såkalt restriktor)
Alternativer: låsbart håndtak, fresing av karm
Fordeler:
– enkel rengjøring av vinduer
– etter at rammen er dreid 180° – enkel rengjøring av utsiden av glasset
– høy holdbarhet og funksjonalitet over lang levetid
– svært god tetthet (vindtrykket presser rammen mot karmen)
Utførelse:
System dedikert til REHAU NORDIC DESIGN PLUS




